Descrizione

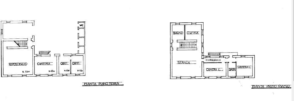
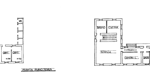
ORFENGO € 72.000 in zona tranquilla, nel verde della campagna novarese, proponiamo una CASA INDIPENDENTE con GIARDINO, cosi’ composta. Al piano terra, da locali di pertinenza dell’alloggio primario, e’ stato ricavato un “appartamentino” di 2 vani + servizi, con ingresso autonomo. Al primo piano troviamo l’alloggio principale, composto da ingresso, grande salone, cucina abitabile, 2 camere da letto, bagno e ripostiglio. Completano la proprietà la grande cantina con soffitti a botte, l’ AUTORIMESSA ed un bel giardino . La proprietà è da RIAGGIORNARE. OTTIMA PROPPOSTA IMMOBILIARE!! Cod. 6992

Dettagli

Codice
EV6992
camere da letto
2
Locali
5
Bagni
2
Dimensione
200 m²
Anno di costruzione
1950
Aggiornato su Gennaio 19, 2026 a 9:52 am

Indirizzo

  • Indirizzo Via Molino, 3
  • Città Casalino
  • Stato Italia
  • Codice postale 28060
  • Paese Italia

Piani

1 piano

Descrizione:

Informazioni del contatto

everest immobiliare
  • everest immobiliare
SCHEDA AGENZIA

Richiedi informazioni su questo immobile

Annunci simili

Compare listings

Confrontare
everest immobiliare
  • everest immobiliare