Descrizione

SUNO € 47.000
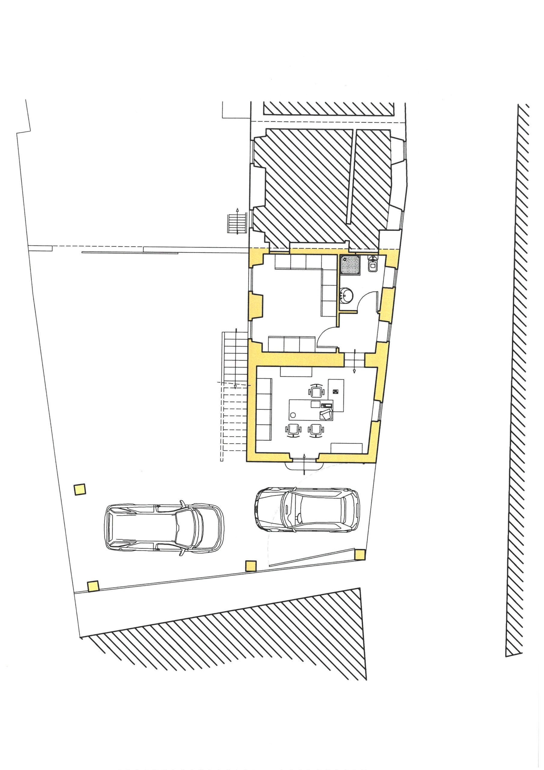
In pieno centro storico proponiamo una CASA AL RUSTICO di 3 VANI + DOPPI SERVIZI con locale MULTIUSO + bagno al piano terreno. La casa è DA ULTIMARE. La distribuzione degli spazi, quindi, si può adattare alle esigenze di chi acquista. Il progetto iniziale dell’alloggio prevede: soggiorno con cucina a vista e terrazzo; la cameretta con un bagno raggiungibile attraverso 4/5 gradini; la camera matrimoniale ed un secondo bagno raggiungibile mediante una scala da realizzarsi nel soggiorno. Il TETTO è NUOVO. La proprietà è completata da un CORTILE DI PROPRIETA’ recintabile. Visionatela poiché ha un ottimo rapporto QUALITA’/PREZZO!

Rendering e planimetrie qui pubblicati sono ipotesi di progetto. Possibilità di acquisto anche del rustico prospiciente con aggiuntvi 25000 €. Cod. 7007

Dettagli

Codice
EV7007
camere da letto
3
Locali
3
Bagni
3
Dimensione
105 m²
Aggiornato su Maggio 19, 2026 a 9:45 am

Indirizzo

  • Indirizzo Via Matteotti, 55
  • Città Suno
  • Stato Italia
  • Codice postale 28019
  • Paese Italia

Piani

Piano terra, primo e secondo

Descrizione:

Informazioni del contatto

everest immobiliare
  • everest immobiliare
SCHEDA AGENZIA

Richiedi informazioni su questo immobile

Annunci simili

Compare listings

Confrontare
everest immobiliare
  • everest immobiliare