Descrizione

BORGOLAVEZZARO € 264.000
In contesto residenziale riservato e tranquillo, composto da tutte villette e basse costruzioni, proponiamo esclusiva villa di recente realizzazione, contraddistinta da finiture di ottimo livello, ben curata nei dettagli con ambienti progettati per offrire il massimo comfort abitativo.
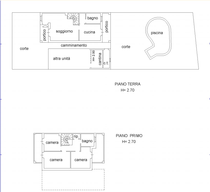
La proprietà, di circa 150 mq, si sviluppa su spazi armoniosamente distribuiti:
– Tre camere da letto ampie e luminose
– Due bagni dal design moderno ed elegante
– Cucina abitabile di generose dimensioni
– Un bel salone, cuore della casa, ideale per accogliere ospiti in un’atmosfera di classe e convivialità
– All’esterno, un portico dotato di zanzariere automatizzate, crea un ambiente protetto e vivibile in ogni stagione, perfetto per pranzi e cene all’aperto.
Fiore all’occhiello della proprietà è la piscina privata, incastonata in uno spazio dedicato al relax e alla convivialità, ideale per vivere appieno la stagione estiva e organizzare momenti esclusivi con amici e famiglia.
Interamente climatizzata e con impianto di antifurto.
– Una comoda autorimessa con attigua cantina e dispensa
Una soluzione abitativa pensata per chi desidera indipendenza, eleganza e qualità costruttiva, senza rinunciare al piacere di vivere gli spazi esterni.
Cod. 7086

Dettagli

Codice
EV7086
camere da letto
3
Locale
1
Bagni
2
Dimensione
144 m²
Garages
2
Anno di costruzione
2010
Aggiornato su Marzo 7, 2026 a 9:33 am

Indirizzo

  • Indirizzo VIA MADRE TERESA DI CALCUTTA, 52
  • Città Borgolavezzaro, Novara
  • Stato Italia
  • Codice postale 28100
  • Paese Italia

Piani

Piano primo

Descrizione:

Informazioni del contatto

everest3
  • everest3
SCHEDA AGENZIA

Richiedi informazioni su questo immobile

Annunci simili

Compare listings

Confrontare
everest3
  • everest3